|
|
| Главная / Строительство |
|
Модульная конюшня
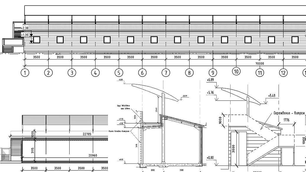
Основные сведения Модульная конюшня производства ЦКТ «Эквиплан» представляет собой изделие заводского изготовления сборно-разборного типа для содержания и обслуживания лошадей в конноспортивных комплексах, коневодческих предприятиях, крестьянских фермерских хозяйствах и т.д. Изделие относится к мобильным, временно устанавливаемым (НЕКАПИТАЛЬНЫМ) сооружениям, а следовательно, не требуется разработка проекта, получения разрешения на строительство и ввод строения в эксплуатацию. Изготовление модульной конюшни осуществляется на производственной базе ЦКТ «Эквиплан» в соответствии с ТУ 25.11.10-11-42439974-2017. Все материалы, применяемые в изделии, имеют государственные сертификаты соответствия ГОСТ и разрешены к применению на территории Российской Федерации. Модульная конюшня состоит из металлического каркаса, ограждающих кровельных и стеновых конструкций, внутри разделено на индивидуальные секции (денники) для лошадей, подсобные и вспомогательные помещения. В зависимости от условий содержания лошадей, конюшня может быть предназначена для летней или круглогодичной эксплуатации, иметь холодное или утепленное исполнение соответственно. Металлокаркас сборно-разборный, на болтовых соединениях, может быть окрашен порошковой краской в любой цвет RAL или оцинкован. В качестве заполнения стен и перегородок может использоваться подготовленная деревянная или цельнопластиковая доска. В производстве применяются хвойные породы дерева - сосна и лиственница, сорта АВ с завальцованными углами. Доска пропитана колорирующим антисептиком, безопасным для животных. Возможно изготовление вентиляционных прозоров в доске. Секции денников разработаны с учетом стандартов безопасности лошади, применяемых ведущими европейскими производителями, и имеют различные варианты исполнения. Фронтальные секции могут быть выполнены с откатными или распашными дверьми, которые в свою очередь могут иметь цельную решетку или распашную фрамугу. Для кормушки во фронтальной секции предусмотрен проем или распашная дверца. Место в деннике под кормушкой может быть занято индивидуальным органайзером. Разделительная секция между денниками может быть заполнена доской полностью, либо пополам/на треть с решеткой. Крыша — кровельная сэндвич-панель с утеплением базальтовой ватой. В круглогодичном исполнении каркас конюшни обшивается системой минераловатного утепления. В качестве облицовки стен применяется имитатор бруса или металлический сайдинг. Для теплоизоляции рекомендуется комплектовать конюшню в торцах тамбурами, отсеченными от основного помещения дополнительными воротами. Для циркуляции воздуха в кровле устанавливаются вентиляционные проходы. Конюшня в круглогодичном исполнении комплектуется окнами. Они могут быть квадратными на высоте 1,6м от пола и комплектоваться металлической решеткой, либо прямоугольными, на высоте 2,2м от пола – без решеток. В летнем исполнении конюшня может не комплектоваться тамбурами, воротами, окнами и вентпроходами. Также на кровле возможна замена сэндвич-панели на профилированный лист. В настоящий момент доступны 4 типа конюшен: 2. Модульная конюшня, тип «Ф» 3. Модульная конюшня-трибуна, тип «Т» 4. Модульная конюшня-летник, тип «Л» 1. Модульная конюшня, тип «A» Каркасная модульная конюшня типа «А» имеет двускатную крышу. Размер модуля 3х4м. Расположение модулей двухрядное, проход 3м. Ширина конюшни 11,4 метра, длинна зависит от количества модулей, высота боковой стены 3 метра, высота крыши в коньке 4,3 метра. За счет оптимально рассчитанных пропорций данный тип является самым экономичным.
2. Модульная конюшня, тип «Ф»
3. Модульная конюшня-трибуна, тип «Т»
4. Модульная конюшня-летник, тип «Л»
Запросить коммерческое предложение на модульную конюшню |
|